Compartir
Un sueño llamado Landhaus
0
1

Información de la Casa

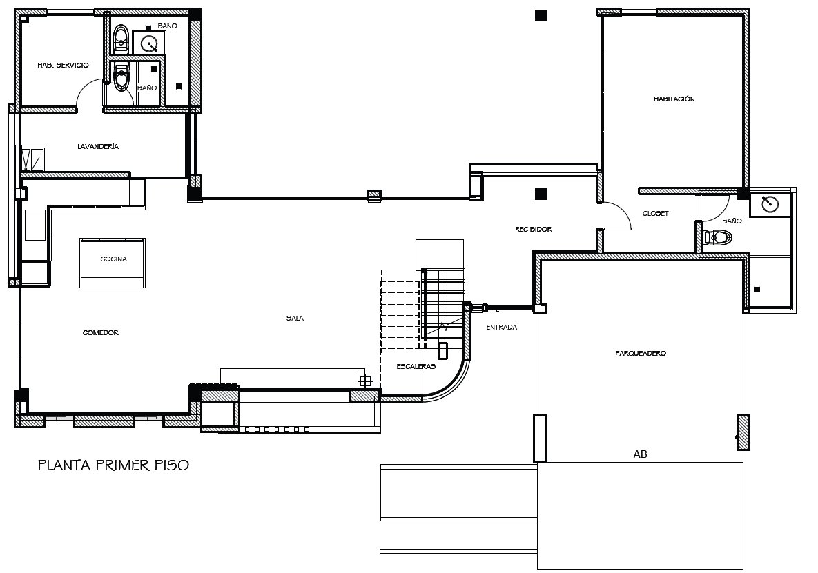
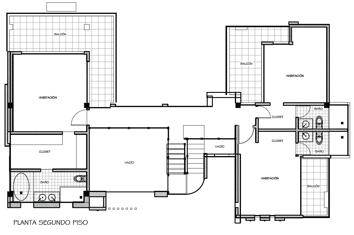
Casa de dos pisos con tres habitaciones, cinco baños y una cocina exclusiva. Cuenta con una sala de doble altura, comedor, piscina moderna con cascada, área de barbacoa (BBQ), terraza y doble parqueadero cubierto. Perfecta combinación de lujo, comodidad y estilo moderno.

Descripción

Opciones de área

En el condominio sueños campestres, nuestras casas ofrecen un amplio espacio de desarrollo las cuales cuentan con un área extensa que corresponde al 20% del índice ocupacional establecido en la propiedad horizontal del proyecto.

Opciones de equipamiento

En tu casa podrás disfrutar de zonas privadas de uso exclusivo de sus habitantes como lo son: piscina, BBQ, casa del árbol y malla catamarán, combinadas con las amenidades que te ofrece tu condominio.

Opciones de distribución

Tu casa podrá ser diseñada y adaptada a tus necesidades y deseos siempre y cuando se cumplan las tipologías descritas en la propiedad horizontal de tu condominio.

Presentación del la Casa.

Landhaus-fachada1

Planos de la Casa

landhaus-p2
landhaus-p1
Ver Casa