Información de la Casa
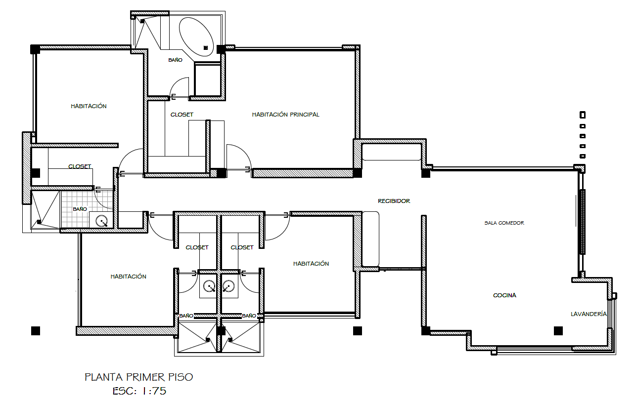
Casa de un piso con cuatro habitaciones, cinco baños y una cocina exclusiva. Cuenta con una sala de estar, comedor, solar, piscina moderna con cascada, área de barbacoa (BBQ), terraza y doble parqueadero cubierto. Perfecta combinación de lujo, comodidad y estilo moderno.
Descripción
En el condominio sueños campestres, nuestras casas ofrecen un amplio espacio de desarrollo las cuales cuentan con un área extensa que corresponde al 20% del índice ocupacional establecido en la propiedad horizontal del proyecto.
En tu casa podrás disfrutar de zonas privadas de uso exclusivo de sus habitantes como lo son: piscina, BBQ, casa del árbol y malla catamarán, combinadas con las amenidades que te ofrece tu condominio.
Tu casa podrá ser diseñada y adaptada a tus necesidades y deseos siempre y cuando se cumplan las tipologías descritas en la propiedad horizontal de tu condominio.

